SAGESSE IMMOBILIÈRE vous propose une maison T4 neuve, située à Villejust (91140), commune résidentielle et traditionnelle à seulement 20 km au sud de Paris.
📍 A proximité du ring des Ulis et de la zone d’activités de Courtabœuf.
Idéalement située à moins de 10 minutes en voiture des commodités locales.
✨ Caractéristiques du bien
Surface habitable : 76,13 m², Maison élevée sur 1 étage, Orientation : Nord, Terrain : 204 m², Jardin total : 149 m², Jardin 1 : 40 m², Jardin 2 : 109 m²
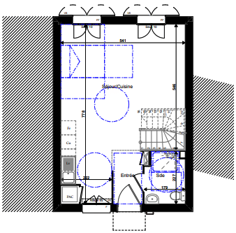
🔹 Rez-de-chaussée (38,87 m²)
Séjour / Cuisine : 32,04 m², Entrée : 3,05 m², Salle d’eau : 3,78 m²
🔹 Étage (37,26 m²)
Chambre 1 : 10,57 m², Chambre 2 : 9,88 m², Chambre 3 : 9,18 m², Salle de bains : 5,60 m², Dégagement : 2,03 m²
Un bien idéal pour une famille recherchant confort, fonctionnalité et extérieur privatif.
🚆 Accessibilité & Environnement
À 13 minutes de l’école maternelle des Clozeaux
À 15 minutes du centre-ville de Nozay, À 24 minutes de l’aéroport Paris-Orly
Proximité du RER Massy-Palaiseau et de la gare TGV
Accès rapide aux grands axes routiers
💰 Conditions financières
Prix : 339 000 € (TVA 20 %)
Livraison : 1ᵉʳ trimestre 2027
Accession libre
Pas d’offre frais de notaire sur ce bien
Offre sous conditions et selon disponibilités.
🔹 Positionnement patrimonial
✔ Maison neuve aux normes actuelles
✔ Charges maîtrisées
✔ Secteur stratégique proche bassin d’emplois (Courtabœuf / Massy)
✔ Idéal résidence principale ou investissement patrimonial
📞 Contactez SAGESSE IMMOBILIÈRE
Vous Servir Est Notre Priorité.







