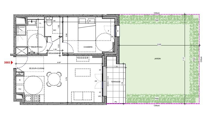
Devenez propriétaire d’un appartement de type T2 au RDC et orienté au NORD-EST.
Le bien comprend : un séjour/cuisine 25,77m²; une Chambre 11,89m²; une SDE 5,47m²; WC 2,17m²; rangement 1,80m²; terrasse 5,24m² et un jardin 44,29m² .
La surface habitable est de 47,10 m²
La surface Totale Privative est de 96,63 m²
ACCES :
- le bus 145
- A 15 min à pied le RER E
- Paul Bert vers la gare du Val de Fontenay (RER E et A)
Prix : 294 597 € (TVA 20%)
Livraison 4ème Trimestre 2027
Pour plus d’informations, n’hésitez pas à prendre contact avec nous !
Vous Servir Est Notre Priorité !



