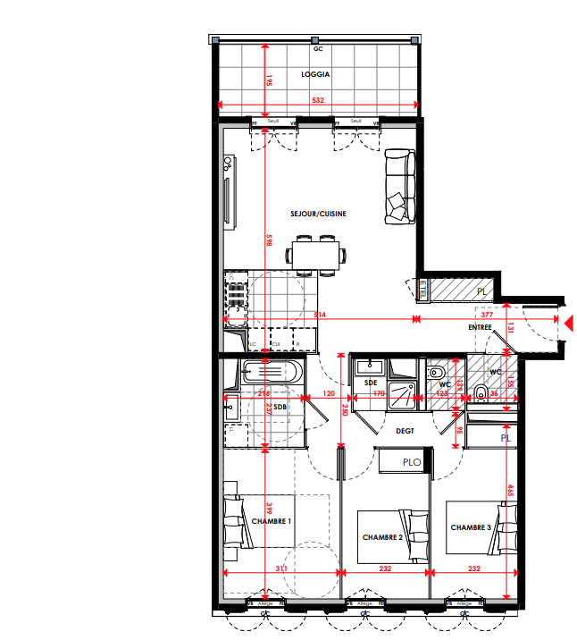
Devenez propriétaire d’un appartement de type T4 au 4ème étage et orienté à L’OUEST.
Le bien comprend : Une entrée 5.59 m²; un séjour/cuisine 30.75 m²; Chambre 1 : 12.42 m²; Chambre 2 : 9.19 m² ; Chambre 3: 10.16 m²; SDB 4.70 m²; SDE 1.89 m²; WC 2.04 m²; WC 1.71 m²; DEGT 5.76 m²; LOGGIA 11.40 m²
Surface habitable 84.21 m²
ACCES :
- le bus 297
- gare du RER B « Gare de Chemin d’Antony »
Prix :442 000€(TVA 20%)
Livraison 1er Trimestre 2026
Pour plus d’informations, n’hésitez pas à prendre contact avec nous !
Vous Servir Est Notre Priorité !



