Devenez propriétaire d’un appartement de type T3 au 1er étage et orienté au SUD.
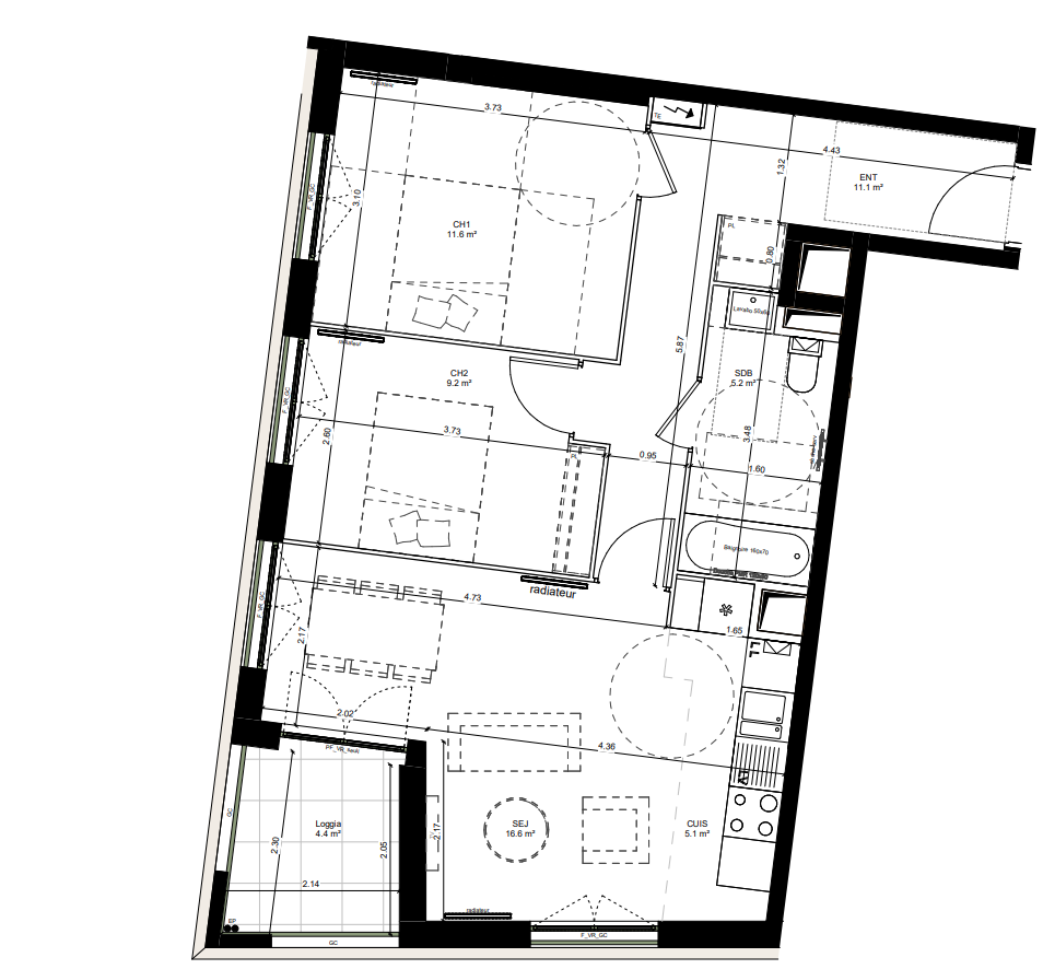
Le bien comprend : Entrée 11.1 m²; un séjour 16.6m²; Cuisine 5.1m²; Chambre 1: 11.6m² ; Chambre 2: 9.2m²; SDB 5,2m²; Loggia 4.4 m²
La surface habitable est de 58.8 m²
ACCES :
- La proximité immédiate du tramway T4 (200m) et la future Ligne 16 du Grand Paris (prévue pour 2026) assurent une liaison exceptionnelle dans toute l’Ile-de-France.
Prix : 228 626€ (TVA 20%)
Livraison 2ème Trimestre 2028
Pour plus d’informations, n’hésitez pas à prendre contact avec nous !
Vous Servir Est Notre Priorité !



