SAGESSE IMMOBILIÈRE vous propose à la location un appartement T2 neuf, situé au 2ᵉ étage d’une résidence récente livrée en 2024, offrant confort, modernité et prestations de qualité.
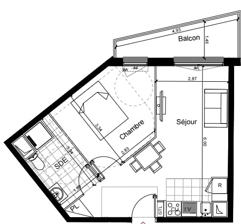
Description du bien: Séjour avec cuisine ouverte équipée : 22,7 m², Chambre : 12 m², Salle de bains avec WC : 5,8 m², Balcon : 5,8 m²,
Emplacement de parking privatif (n° 65)
Prestations:
Appartement neuf, Cuisine équipée, Balcon, Parking en sous-sol, Résidence récente, sécurisée et bien entretenue
Performance énergétique
DPE : B et GES : B
Surface habitable : 40,50 m²
Conditions financières
Loyer hors charges : 880 €
Charges mensuelles : 100 €
Loyer charges comprises : 980 €
Honoraires d’agence : 526,50 € TTC
Localisation
Situé à Noisy-le-Grand, dans un environnement résidentiel recherché, à proximité des commodités, des axes principaux et des transports.
RER A – Noisy-le-Champs accessible en environ 6 minutes à pied, permettant un accès rapide à Paris et aux pôles économiques environnants.
Pour toute information complémentaire ou pour organiser une visite, merci de contacter SAGESSE IMMOBILIÈRE.
Vous servir est notre priorité.




